北海道札幌市西区西町北18丁目 周辺地図
北海道札幌市西区西町北18丁目 周辺地図
札幌市営東西線宮の沢駅 徒歩5分
1億7000万円
賃貸中
599.84m² (約181.45坪)
261.81m²
(約79.19坪)
2012年2月築 (築14年)
鉄筋コンクリート造 地上4階建
三井のリハウス
札幌駅北口センター
TEL:0120-321-551
北海道札幌市西区西町北18丁目
周辺地図
北海道札幌市西区の事業用不動産(アパート)を探す
札幌市営東西線宮の沢駅 徒歩5分 札幌市営東西線 宮の沢駅の事業用不動産(アパート)を探す 札幌市営東西線 宮の沢駅の事業用不動産(アパート)を探す
1億7000万円
一棟アパート
599.84m² (約181.45坪)
261.81m²
(約79.19坪)
2012年2月築 (築14年)
1LDK
鉄筋コンクリート造 地上4階建
15戸
33.86㎡~35.57㎡
賃貸中
9,396,000 円 (調査日:2026年4月17日)
所有権
-
-
-
宅地
北東側:幅員 約8.0m (公道)
第一種住居地域
/
60%
/
200%
市街化区域
否
賃貸中(賃貸借契約引継要)
※当物件を事業の用として利用する場合、都市計画法をはじめとした各種法令の制限等に適応する必要があります。
事業の内容や規模によりご希望の事業をおこなえない場合がありますのでご容赦ください。詳しくは弊社担当者までお問合せください。
用途地域内の建築物の用途制限等について(参考)
相談
仲介
2026年4月26日
2026年5月10日
■グラスマーレ西町 ━━━━━━━━━・・・
〇 オーナーチェンジ物件
〇 地下鉄東西線「宮の沢」駅まで徒歩5分
〇 平成24年2月築
〇 鉄筋コンクリート造4階建
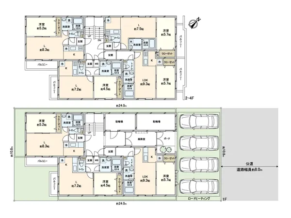
〇 総戸数15戸(1LDK×15戸)
15戸中15戸稼働(令和8年3月現在)
〇 満室想定年間賃料:9,396,000円
〇 満室想定表面利回り:約5.5%
〇 現行年間賃料:9,396,000円
〇 現行表面利回り:約5.5%
〇 4台分の駐車スペース有
〇 駐車場にはロードヒーティング敷設
〇 北東側前面札幌市道 幅員約8.0m
〇 敷地面積:261.81平米(約79.19坪)
〇 建物面積:599.84平米(約181.45坪)
〇 第一種住居地域(建ぺい率60% 容積率200%)
物件No. F9BBDA03
10:00~18:00 / 定休日:毎週水曜日・日曜日 ※5/1(金)~5/6(水) GW休業期間
よろしければ保存ボタンを選択してください。※保存後、以下の条件はマイページの「お知らせメール設定」より編集できます。
| エリア | 北海道 札幌市西区 | 路 線 | 指定しない |
|---|---|---|---|
| 物件種別 | アパート | 延床面積 | 500m²以上 ~ 1000m²未満 |
| 土地面積 | 200m²以上 ~ 300m²未満 | 指定容積率 | 200%以上 ~ 300%未満 |
| 道路幅員 | 8m以上 ~ 10m未満 | 価 格 | 1億円以上 ~ 2億円未満 |
| 築年数 | 築10年以上~築15年未満 | 構 造 | 鉄筋コンクリート造 |
| 土地権利 | 所有権 | 駅までの徒歩分数 | 5分以上 ~ 10分未満 |
| 使用用途 | 指定しない | 用途地域 | 第一種住居地域 |
| 現況 | 賃貸中 |
マイページの「お知らせメール設定」よりご確認いただけます。
よろしければ保存ボタンを選択してください。
※保存後、以下の条件はマイページの「お知らせメール設定」より編集できます。
| エリア | 北海道 札幌市西区 |
|---|---|
| 物件種別 | アパート |
| 延床面積 | 500m²以上 ~ 1000m²未満 |
| 土地面積 | 200m²以上 ~ 300m²未満 |
| 指定容積率 | 200%以上 ~ 300%未満 |
| 道路幅員 | 8m以上 ~ 10m未満 |
| 価 格 | 1億円以上 ~ 2億円未満 |
| 築年数 | 築10年以上~築15年未満 |
| 構 造 | 鉄筋コンクリート造 |
| 土地権利 | 所有権 |
| 駅までの徒歩分数 | 5分以上 ~ 10分未満 |
| 用途地域 | 第一種住居地域 |
| 現況 | 賃貸中 |
マイページの「お知らせメール設定」よりご確認いただけます。
マイページの「保存した検索条件リスト」よりご確認いただけます。
検索条件にあてはまる物件情報をメールで受け取るには会員登録が必要となります。
マイページの「保存した検索条件リスト」よりご確認いただけます。
検索条件にあてはまる物件情報をメールで受け取るには会員登録が必要となります。
マイページの「保存した検索条件リスト」よりご確認いただけます。
検索条件にあてはまる物件情報をメールで受け取るには会員登録が必要となります。
マイページの「保存した検索条件リスト」よりご確認いただけます。
検索条件にあてはまる物件情報をメールで受け取るには会員登録が必要となります。