京都府京都市左京区岩倉中町 周辺地図
京都府京都市左京区岩倉中町 周辺地図
叡山電鉄岩倉駅 徒歩7分
8080万円
空家
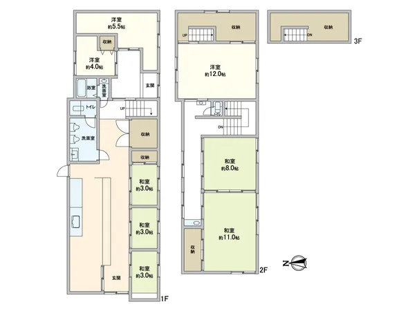
167.05m² (約50.53坪)
198.81m²
(約60.14坪)
1982年6月築 (築43年)
木造 地上2階建
三井のリハウス
京都北センター
TEL:0120-93-3431
京都府京都市左京区岩倉中町
周辺地図
京都府京都市左京区の事業用不動産(店舗・事務所)を探す
叡山電鉄岩倉駅 徒歩7分 叡山電鉄 岩倉駅の事業用不動産(店舗・事務所)を探す 叡山電鉄 岩倉駅の事業用不動産(店舗・事務所)を探す
8080万円
店舗・事務所
167.05m² (約50.53坪)
198.81m²
(約60.14坪)
1982年6月築 (築43年)
5K
木造 地上2階建
空家
-
所有権
有
-
-
宅地
西側:幅員 約14.0m (公道)
第二種中高層住居専用地域
/
40%
/
200%
市街化区域
否
※本物件は規定の容積率をオーバーしており、再建築にあたり同規模の建築物は建築できません。
※当物件を事業の用として利用する場合、都市計画法をはじめとした各種法令の制限等に適応する必要があります。
事業の内容や規模によりご希望の事業をおこなえない場合がありますのでご容赦ください。詳しくは弊社担当者までお問合せください。
用途地域内の建築物の用途制限等について(参考)
相談
仲介
2026年4月10日
2026年4月24日
■ おすすめポイント ━━━━━━━━━━━━━━━・・・・・
●土地面積198.81平米(約60.14坪)
●建物面積167.05平米
●前面道路幅員約14メートル
●南側道路接道のため日当たり良好
物件No. FYHBCA08
10:00~18:00 / 定休日:毎週火曜日・水曜日 ※5/1(金)~5/6(水) GW休業期間
よろしければ保存ボタンを選択してください。※保存後、以下の条件はマイページの「お知らせメール設定」より編集できます。
| エリア | 京都府 京都市左京区 | 路 線 | 指定しない |
|---|---|---|---|
| 物件種別 | 店舗・事務所 | 延床面積 | 100m²以上 ~ 300m²未満 |
| 土地面積 | 100m²以上 ~ 200m²未満 | 指定容積率 | 200%以上 ~ 300%未満 |
| 道路幅員 | 12m以上 | 価 格 | 7,000万円以上 ~ 1億円未満 |
| 築年数 | 築20年以上 | 構 造 | 木造 |
| 土地権利 | 所有権 | 駅までの徒歩分数 | 5分以上 ~ 10分未満 |
| 使用用途 | 指定しない | 用途地域 | 第二種中高層住居専用地域 |
| 現況 | 空家 |
マイページの「お知らせメール設定」よりご確認いただけます。
よろしければ保存ボタンを選択してください。
※保存後、以下の条件はマイページの「お知らせメール設定」より編集できます。
| エリア | 京都府 京都市左京区 |
|---|---|
| 物件種別 | 店舗・事務所 |
| 延床面積 | 100m²以上 ~ 300m²未満 |
| 土地面積 | 100m²以上 ~ 200m²未満 |
| 指定容積率 | 200%以上 ~ 300%未満 |
| 道路幅員 | 12m以上 |
| 価 格 | 7,000万円以上 ~ 1億円未満 |
| 築年数 | 築20年以上 |
| 構 造 | 木造 |
| 土地権利 | 所有権 |
| 駅までの徒歩分数 | 5分以上 ~ 10分未満 |
| 用途地域 | 第二種中高層住居専用地域 |
| 現況 | 空家 |
マイページの「お知らせメール設定」よりご確認いただけます。
マイページの「保存した検索条件リスト」よりご確認いただけます。
検索条件にあてはまる物件情報をメールで受け取るには会員登録が必要となります。
マイページの「保存した検索条件リスト」よりご確認いただけます。
検索条件にあてはまる物件情報をメールで受け取るには会員登録が必要となります。
マイページの「保存した検索条件リスト」よりご確認いただけます。
検索条件にあてはまる物件情報をメールで受け取るには会員登録が必要となります。
マイページの「保存した検索条件リスト」よりご確認いただけます。
検索条件にあてはまる物件情報をメールで受け取るには会員登録が必要となります。