広島県広島市安佐北区可部南2丁目 周辺地図
広島県広島市安佐北区可部南2丁目 周辺地図
可部線中島駅 徒歩6分
3180万円
居住中
104.12m² (約31.49坪)
134.19m²
(約40.59坪)
2014年1月築 (築12年)
木造 地上2階建
三井のリハウス
祇園新道センター
TEL:0120-321-679
広島県広島市安佐北区可部南2丁目
周辺地図
広島県広島市安佐北区の事業用不動産(戸建)を探す
可部線中島駅 徒歩6分 可部線 中島駅の事業用不動産(戸建)を探す 可部線 中島駅の事業用不動産(戸建)を探す
3180万円
戸建
104.12m² (約31.49坪)
134.19m²
(約40.59坪)
2014年1月築 (築12年)
3SLDK
木造 地上2階建
居住中
-
所有権
有
-
-
宅地
南側:幅員 約5.1m (公道) 、 東側:幅員 約4.2m (公道)
準工業地域
/
60%
/
200%
市街化区域
否
※宅地造成等工事規制区域(各都道府県知事へ「許可」等の申請が必要となる場合があります。)
※当物件を事業の用として利用する場合、都市計画法をはじめとした各種法令の制限等に適応する必要があります。
事業の内容や規模によりご希望の事業をおこなえない場合がありますのでご容赦ください。詳しくは弊社担当者までお問合せください。
用途地域内の建築物の用途制限等について(参考)
相談
仲介
2026年4月8日
2026年4月22日
-物件のおすすめポイント-
▼立地
・JR可部線「中島」駅まで徒歩6分(約460メートル)
・スーパー、コンビニ、ドラッグストアが徒歩圏内
毎日の生活に便利です
・街並みの整った分譲地の一画
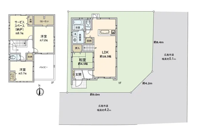
▼建物の特徴
・平成26年築
・オール電化
・南東角地のため陽当たり、通風良好
・並列2台駐車可能(車種によります)
▼お部屋の特徴
・室内丁寧にご利用されています
・使い勝手の良い3SLDKの間取り
・各居室に収納あり
・LDKはゆとりある約18.5帖
▼設備
・対面式キッチン
■ご希望の住まい探しをお手伝いします ━━━━━ ・・・
物件の詳細・ご相談はお気軽にお問い合わせください。
【お住みかえをご検討中のお客様へ】
■ご自宅の『売却』も三井のリハウスにお任せください
・「売却が先か購入が先か」買替えたいけど、何から始めたら良いのか分からない。
・所有不動産の相場を把握しておきたい。
・自宅の住宅ローンが残っているので、無理のない資金計画を相談したい。
お住まいの購入から売却まで、お客様のご事情に合わせてトータルサポートいたします。
まずはフリーコールにて、ご所有不動産の概要をお申し付けください。
(お取扱いできない地域もございますのでご了承ください)
『無料査定のお申込みは』
三井のリハウス 祇園新道センター
フリーコール 0120-321-679
物件No. FV7BBA0D
10:00~18:00 / 定休日:毎週火曜日・水曜日
よろしければ保存ボタンを選択してください。※保存後、以下の条件はマイページの「お知らせメール設定」より編集できます。
| エリア | 広島県 広島市安佐北区 | 路 線 | 指定しない |
|---|---|---|---|
| 物件種別 | 戸建 | 延床面積 | 100m²以上 ~ 300m²未満 |
| 土地面積 | 100m²以上 ~ 200m²未満 | 指定容積率 | 200%以上 ~ 300%未満 |
| 道路幅員 | 4m以上 ~ 6m未満 | 価 格 | 3,000万円以上 ~ 5,000万円未満 |
| 築年数 | 築10年以上~築15年未満 | 構 造 | 木造 |
| 土地権利 | 所有権 | 駅までの徒歩分数 | 5分以上 ~ 10分未満 |
| 使用用途 | 指定しない | 用途地域 | 準工業地域 |
| 現況 | 指定しない |
マイページの「お知らせメール設定」よりご確認いただけます。
よろしければ保存ボタンを選択してください。
※保存後、以下の条件はマイページの「お知らせメール設定」より編集できます。
| エリア | 広島県 広島市安佐北区 |
|---|---|
| 物件種別 | 戸建 |
| 延床面積 | 100m²以上 ~ 300m²未満 |
| 土地面積 | 100m²以上 ~ 200m²未満 |
| 指定容積率 | 200%以上 ~ 300%未満 |
| 道路幅員 | 4m以上 ~ 6m未満 |
| 価 格 | 3,000万円以上 ~ 5,000万円未満 |
| 築年数 | 築10年以上~築15年未満 |
| 構 造 | 木造 |
| 土地権利 | 所有権 |
| 駅までの徒歩分数 | 5分以上 ~ 10分未満 |
| 用途地域 | 準工業地域 |
マイページの「お知らせメール設定」よりご確認いただけます。
マイページの「保存した検索条件リスト」よりご確認いただけます。
検索条件にあてはまる物件情報をメールで受け取るには会員登録が必要となります。
マイページの「保存した検索条件リスト」よりご確認いただけます。
検索条件にあてはまる物件情報をメールで受け取るには会員登録が必要となります。
マイページの「保存した検索条件リスト」よりご確認いただけます。
検索条件にあてはまる物件情報をメールで受け取るには会員登録が必要となります。
マイページの「保存した検索条件リスト」よりご確認いただけます。
検索条件にあてはまる物件情報をメールで受け取るには会員登録が必要となります。