広島県広島市中区袋町 周辺地図
広島県広島市中区袋町 周辺地図
広島電鉄本線八丁堀駅 徒歩6分
広島電鉄宇品線袋町駅 徒歩7分
2億8000万円
賃貸中
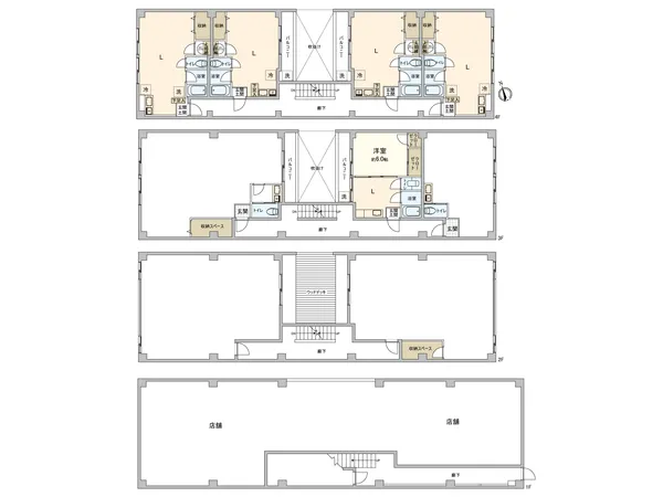
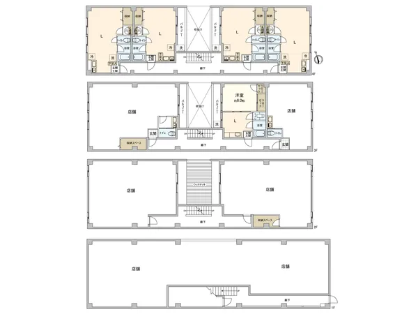
462.84m² (約140.00坪)
144.92m²
(約43.83坪)
1973年3月築 (築53年)
鉄骨造 地上4階建
三井のリハウス
広島中央センター
TEL:0120-386-321
広島県広島市中区袋町
周辺地図
広島県広島市中区の事業用不動産(一棟ビル)を探す
広島電鉄本線八丁堀駅 徒歩6分
広島電鉄本線 八丁堀駅の事業用不動産(一棟ビル)を探す
広島電鉄宇品線袋町駅 徒歩7分
広島電鉄宇品線 袋町駅の事業用不動産(一棟ビル)を探す
広島電鉄本線 八丁堀駅の事業用不動産(一棟ビル)を探す
広島電鉄宇品線 袋町駅の事業用不動産(一棟ビル)を探す
2億8000万円
一棟ビル
462.84m² (約140.00坪)
144.92m²
(約43.83坪)
1973年3月築 (築53年)
1K
鉄骨造 地上4階建
賃貸中
-
所有権
無
-
-
宅地
南東側:幅員 約20.0m (公道)
商業地域
/
80%
/
500%
市街化区域
否
※当物件を事業の用として利用する場合、都市計画法をはじめとした各種法令の制限等に適応する必要があります。 事業の内容や規模によりご希望の事業をおこなえない場合がありますのでご容赦ください。詳しくは弊社担当者までお問合せください。 用途地域内の建築物の用途制限等について(参考)
即時
仲介
2026年4月23日
2026年5月7日
■ おすすめポイント ━━━━━━━━━━━━━━━・・・・・
〇 並木通りに面する好立地
〇 徒歩圏内に生活利便施設が揃っております
物件No. FV1ASA01
10:00~18:00 / 定休日:毎週水曜日 ※5/1(金)~5/6(水) GW休業期間
よろしければ保存ボタンを選択してください。※保存後、以下の条件はマイページの「お知らせメール設定」より編集できます。
| エリア | 広島県 広島市中区 | 路 線 | 指定しない |
|---|---|---|---|
| 物件種別 | 一棟ビル | 延床面積 | 300m²以上 ~ 500m²未満 |
| 土地面積 | 100m²以上 ~ 200m²未満 | 指定容積率 | 500%以上 ~ 600%未満 |
| 道路幅員 | 12m以上 | 価 格 | 2億円以上 ~ 3億円未満 |
| 築年数 | 築20年以上 | 構 造 | 鉄骨造 |
| 土地権利 | 所有権 | 駅までの徒歩分数 | 5分以上 ~ 10分未満 |
| 使用用途 | 指定しない | 用途地域 | 商業地域 |
| 現況 | 賃貸中 |
マイページの「お知らせメール設定」よりご確認いただけます。
よろしければ保存ボタンを選択してください。
※保存後、以下の条件はマイページの「お知らせメール設定」より編集できます。
| エリア | 広島県 広島市中区 |
|---|---|
| 物件種別 | 一棟ビル |
| 延床面積 | 300m²以上 ~ 500m²未満 |
| 土地面積 | 100m²以上 ~ 200m²未満 |
| 指定容積率 | 500%以上 ~ 600%未満 |
| 道路幅員 | 12m以上 |
| 価 格 | 2億円以上 ~ 3億円未満 |
| 築年数 | 築20年以上 |
| 構 造 | 鉄骨造 |
| 土地権利 | 所有権 |
| 駅までの徒歩分数 | 5分以上 ~ 10分未満 |
| 用途地域 | 商業地域 |
| 現況 | 賃貸中 |
マイページの「お知らせメール設定」よりご確認いただけます。
マイページの「保存した検索条件リスト」よりご確認いただけます。
検索条件にあてはまる物件情報をメールで受け取るには会員登録が必要となります。
マイページの「保存した検索条件リスト」よりご確認いただけます。
検索条件にあてはまる物件情報をメールで受け取るには会員登録が必要となります。
マイページの「保存した検索条件リスト」よりご確認いただけます。
検索条件にあてはまる物件情報をメールで受け取るには会員登録が必要となります。
マイページの「保存した検索条件リスト」よりご確認いただけます。
検索条件にあてはまる物件情報をメールで受け取るには会員登録が必要となります。