東京都西東京市柳沢5丁目 周辺地図
東京都西東京市柳沢5丁目 周辺地図
西武新宿線西武柳沢駅 徒歩9分
中央本線吉祥寺駅 バス20分「柳沢」停歩5分
1280万円
空家
67.90m² (約20.53坪)
51.37m²
(約15.53坪)
※別途私道約18.71m²有
(共有持分 1/2)
1982年3月築 (築44年)
木造 地上2階建
三井のリハウス
田無センター
TEL:0120-558-321
東京都西東京市柳沢5丁目
周辺地図
東京都西東京市の事業用不動産(戸建)を探す
西武新宿線西武柳沢駅 徒歩9分
西武新宿線 西武柳沢駅の事業用不動産(戸建)を探す
中央本線吉祥寺駅 バス20分「柳沢」停歩5分
中央本線 吉祥寺駅の事業用不動産(戸建)を探す
西武新宿線 西武柳沢駅の事業用不動産(戸建)を探す
中央本線 吉祥寺駅の事業用不動産(戸建)を探す
1280万円
戸建
67.90m² (約20.53坪)
51.37m²
(約15.53坪)
※別途私道約18.71m²有
(共有持分 1/2)
1982年3月築 (築44年)
4DK
木造 地上2階建
空家
-
所有権
-
-
-
宅地
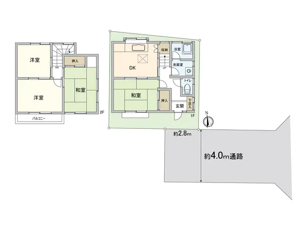
南側:幅員 約4.0m (私道)
準工業地域
/
60%
/
200%
市街化区域
否
再建築不可
本物件は、建築基準法上の道路に2m以上の間口で接していないため、建築はできません。
※当物件を事業の用として利用する場合、都市計画法をはじめとした各種法令の制限等に適応する必要があります。
事業の内容や規模によりご希望の事業をおこなえない場合がありますのでご容赦ください。詳しくは弊社担当者までお問合せください。
用途地域内の建築物の用途制限等について(参考)
即時
仲介
2026年5月1日
2026年5月15日
■ おすすめポイント ――――――――――・・・・・
○建物4DK、和室は2室、洋室が2室
○キッチントイレ浴室全て1階にあるため、1階で生活が完結します
○現空・即入居可(残代金清算後)
○空家につきお気軽にご覧下さい
■ アクセス ―――――――――――――・・・・・
○西武新宿線「西武柳沢」駅 徒歩9分
○JR中央線「吉祥寺」駅よりバス20分「柳沢」停下車徒歩5分も利用可能
■ ライフインフォメーション ――――――――・・・・・
○オーケー東伏見店 徒歩12分 (約930m)
○セブンイレブン 西東京南町1丁目店 徒歩6分(約410m)
〇いなげや保谷町店 徒歩14分(約1050m)
〇リヴィン田無店 徒歩15分(約1130m)
○くすりのダイイチ 西武柳沢北口店 徒歩10分 (約750m)
○やぎさわ内科・脳神経内科 徒歩5分 (約380m)
○グランシーナ公園 徒歩5分(約350m)
○西東京市立保谷第二小学校 徒歩10分 (約780m)
○西東京市立柳沢中学校 徒歩7分(約500m)
物件No. FM7BCA06
10:00~18:00 / 定休日:毎週火曜日・水曜日 ※5/1(金)~5/6(水) GW休業期間
よろしければ保存ボタンを選択してください。※保存後、以下の条件はマイページの「お知らせメール設定」より編集できます。
| エリア | 東京都 西東京市 | 路 線 | 指定しない |
|---|---|---|---|
| 物件種別 | 戸建 | 延床面積 | 100m²未満 |
| 土地面積 | 100m²未満 | 指定容積率 | 200%以上 ~ 300%未満 |
| 道路幅員 | 4m以上 ~ 6m未満 | 価 格 | 1,000万円以上 ~ 3,000万円未満 |
| 築年数 | 築20年以上 | 構 造 | 木造 |
| 土地権利 | 所有権 | 駅までの徒歩分数 | 5分以上 ~ 10分未満 |
| 使用用途 | 指定しない | 用途地域 | 準工業地域 |
| 現況 | 空家 |
マイページの「お知らせメール設定」よりご確認いただけます。
よろしければ保存ボタンを選択してください。
※保存後、以下の条件はマイページの「お知らせメール設定」より編集できます。
| エリア | 東京都 西東京市 |
|---|---|
| 物件種別 | 戸建 |
| 延床面積 | 100m²未満 |
| 土地面積 | 100m²未満 |
| 指定容積率 | 200%以上 ~ 300%未満 |
| 道路幅員 | 4m以上 ~ 6m未満 |
| 価 格 | 1,000万円以上 ~ 3,000万円未満 |
| 築年数 | 築20年以上 |
| 構 造 | 木造 |
| 土地権利 | 所有権 |
| 駅までの徒歩分数 | 5分以上 ~ 10分未満 |
| 用途地域 | 準工業地域 |
| 現況 | 空家 |
マイページの「お知らせメール設定」よりご確認いただけます。
マイページの「保存した検索条件リスト」よりご確認いただけます。
検索条件にあてはまる物件情報をメールで受け取るには会員登録が必要となります。
マイページの「保存した検索条件リスト」よりご確認いただけます。
検索条件にあてはまる物件情報をメールで受け取るには会員登録が必要となります。
マイページの「保存した検索条件リスト」よりご確認いただけます。
検索条件にあてはまる物件情報をメールで受け取るには会員登録が必要となります。
マイページの「保存した検索条件リスト」よりご確認いただけます。
検索条件にあてはまる物件情報をメールで受け取るには会員登録が必要となります。