東京都江東区白河3丁目 周辺地図
東京都江東区白河3丁目 周辺地図
東京メトロ半蔵門線清澄白河駅 徒歩4分
都営大江戸線清澄白河駅 徒歩7分
都営新宿線菊川駅 徒歩12分
5290万円
居住中
55.88m² (約16.90坪)
30.87m²
(約9.33坪)
1999年8月築 (築26年)
木造 地上3階建
三井のリハウス
清澄白河センター
TEL:0120-959-731
東京都江東区白河3丁目
周辺地図
東京都江東区の事業用不動産(戸建)を探す
東京メトロ半蔵門線清澄白河駅 徒歩4分
東京メトロ半蔵門線 清澄白河駅の事業用不動産(戸建)を探す
都営大江戸線清澄白河駅 徒歩7分
都営大江戸線 清澄白河駅の事業用不動産(戸建)を探す
都営新宿線菊川駅 徒歩12分
都営新宿線 菊川駅の事業用不動産(戸建)を探す
東京メトロ半蔵門線 清澄白河駅の事業用不動産(戸建)を探す
都営大江戸線 清澄白河駅の事業用不動産(戸建)を探す
都営新宿線 菊川駅の事業用不動産(戸建)を探す
5290万円
戸建
55.88m² (約16.90坪)
30.87m²
(約9.33坪)
1999年8月築 (築26年)
2LDK
木造 地上3階建
居住中
-
所有権
-
-
-
宅地
西側:幅員 約8.0m (公道)
準工業地域
/
60%
/
300%
市街化区域
否
本物件建物は建ぺい率超過、建築確認申請内容と相違のため建築基準法に抵触しています。
仮測量面積約31.44平米(2026年3月実施)隣地境界立会等が未了の為、確定測量の結果増減する可能性があります。
※当物件を事業の用として利用する場合、都市計画法をはじめとした各種法令の制限等に適応する必要があります。
事業の内容や規模によりご希望の事業をおこなえない場合がありますのでご容赦ください。詳しくは弊社担当者までお問合せください。
用途地域内の建築物の用途制限等について(参考)
相談
仲介
2026年4月26日
2026年5月10日
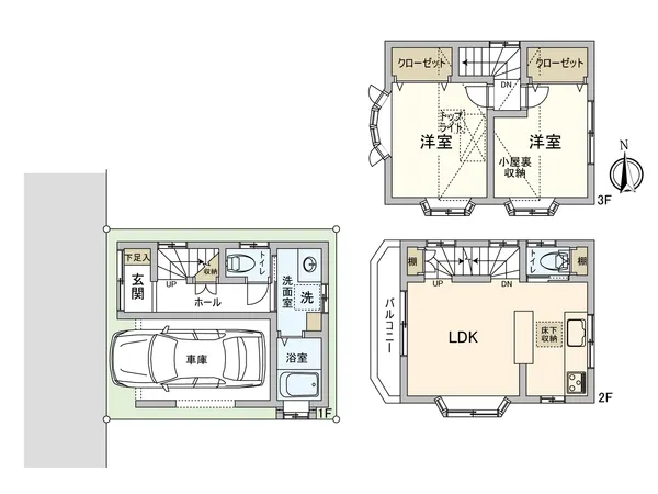
-物件のおすすめポイント-
・2駅3路線利用可能
東京メトロ半蔵門線 清澄白河駅 徒歩4分
都営大江戸線 清澄白河駅 徒歩7分
都営新宿線 菊川駅 徒歩12分
〇渋谷・大手町・新宿へ一本で行くことができる多路線の利用が可能です。
▼立地
・西向き玄関で落ち着いた雰囲気
・南向きLDKは三方向に窓あり
▼建物の特徴
・車庫付きで雨の日も安心(車種による)
・南東側浴室に窓あり換気良好
▼設備
・LDKに床下収納と棚を完備
・各洋室にクローゼット収納あり
・3階洋室には小屋裏収納有
■ ご希望の住まい探しをお手伝いします ━━━━━・・・
土地としてのご検討も可能でございます。
詳細についてはお気軽にお問い合わせくださいませ。
物件No. FLBAWA06
10:00~18:00 / 定休日:毎週火曜日・水曜日 ※5/1(金)~5/6(水) GW休業期間
よろしければ保存ボタンを選択してください。※保存後、以下の条件はマイページの「お知らせメール設定」より編集できます。
| エリア | 東京都 江東区 | 路 線 | 指定しない |
|---|---|---|---|
| 物件種別 | 戸建 | 延床面積 | 100m²未満 |
| 土地面積 | 100m²未満 | 指定容積率 | 300%以上 ~ 400%未満 |
| 道路幅員 | 8m以上 ~ 10m未満 | 価 格 | 5,000万円以上 ~ 7,000万円未満 |
| 築年数 | 築20年以上 | 構 造 | 木造 |
| 土地権利 | 所有権 | 駅までの徒歩分数 | 5分未満 |
| 使用用途 | 指定しない | 用途地域 | 準工業地域 |
| 現況 | 指定しない |
マイページの「お知らせメール設定」よりご確認いただけます。
よろしければ保存ボタンを選択してください。
※保存後、以下の条件はマイページの「お知らせメール設定」より編集できます。
| エリア | 東京都 江東区 |
|---|---|
| 物件種別 | 戸建 |
| 延床面積 | 100m²未満 |
| 土地面積 | 100m²未満 |
| 指定容積率 | 300%以上 ~ 400%未満 |
| 道路幅員 | 8m以上 ~ 10m未満 |
| 価 格 | 5,000万円以上 ~ 7,000万円未満 |
| 築年数 | 築20年以上 |
| 構 造 | 木造 |
| 土地権利 | 所有権 |
| 駅までの徒歩分数 | 5分未満 |
| 用途地域 | 準工業地域 |
マイページの「お知らせメール設定」よりご確認いただけます。
マイページの「保存した検索条件リスト」よりご確認いただけます。
検索条件にあてはまる物件情報をメールで受け取るには会員登録が必要となります。
マイページの「保存した検索条件リスト」よりご確認いただけます。
検索条件にあてはまる物件情報をメールで受け取るには会員登録が必要となります。
マイページの「保存した検索条件リスト」よりご確認いただけます。
検索条件にあてはまる物件情報をメールで受け取るには会員登録が必要となります。
マイページの「保存した検索条件リスト」よりご確認いただけます。
検索条件にあてはまる物件情報をメールで受け取るには会員登録が必要となります。