大阪府大阪市北区梅田1丁目 周辺地図
大阪府大阪市北区梅田1丁目 周辺地図
JR東西線北新地駅 徒歩1分
大阪メトロ谷町線東梅田駅 徒歩4分
東海道本線(米原~神戸)大阪駅 徒歩7分
3億8000万円
鉄骨鉄筋コンクリート造 地下4階付 地上16階建
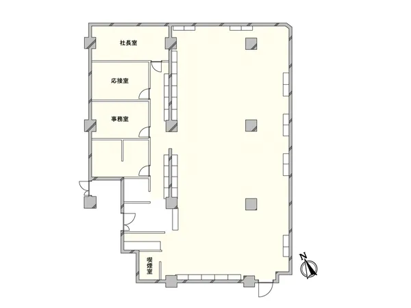
303.13m²
(約91.69坪)
ワンルーム
居住中
1976年11月築 (築49年)
三井のリハウス
梅田センター
TEL:0120-3815-31
大阪府大阪市北区梅田1丁目
周辺地図
大阪府大阪市北区の事業用不動産(店舗・事務所(区分所有))を探す
JR東西線北新地駅 徒歩1分
JR東西線 北新地駅の事業用不動産(店舗・事務所(区分所有))を探す
大阪メトロ谷町線東梅田駅 徒歩4分
大阪メトロ谷町線 東梅田駅の事業用不動産(店舗・事務所(区分所有))を探す
東海道本線(米原~神戸)大阪駅 徒歩7分
東海道本線(米原~神戸) 大阪駅の事業用不動産(店舗・事務所(区分所有))を探す
JR東西線 北新地駅の事業用不動産(店舗・事務所(区分所有))を探す
大阪メトロ谷町線 東梅田駅の事業用不動産(店舗・事務所(区分所有))を探す
東海道本線(米原~神戸) 大阪駅の事業用不動産(店舗・事務所(区分所有))を探す
3億8000万円
333,745 円/月
121,252 円/月
店舗・事務所(区分所有)
303.13m²
(約91.69坪)
1976年11月築 (築49年)
11階 / 地上16階 地下4階 建
南
-
居住中
-
-
-
-
鉄骨鉄筋コンクリート造 地下4階付 地上16階建
280戸
大阪市街地開発(株)
全部委託
日勤
大阪市都市開発局(新築分譲時における売主)
(株)鴻池組、(株)錢高組、(株)松村組、(株)奥村組
大阪市都市開発局
所有権
■現況:使用中
※当物件を事業の用として利用する場合、都市計画法をはじめとした各種法令の制限等に適応する必要があります。
事業の内容や規模によりご希望の事業をおこなえない場合がありますのでご容赦ください。詳しくは弊社担当者までお問合せください。
用途地域内の建築物の用途制限等について(参考)
相談
仲介
2026年5月1日
2026年5月15日
■ おすすめポイント ━━━━━━━━━━━━━━━・・・・・
○ 大阪梅田の大型複合ビル
○ 専有面積:303.13平米
○ 11階・北東角部分
○ 事務所利用に適しています(規約による制限有り)
○ 複数沿線利用可能
・JR東西線「北新地」駅 徒歩1分
・大阪メトロ谷町線「東梅田」駅 徒歩4分
・大阪メトロ四つ橋線「西梅田」駅 徒歩4分
・阪神本線「大阪梅田」駅 徒歩5分
・大阪メトロ御堂筋線「梅田」駅 徒歩5分
・JR東海道本線/大阪環状線「大阪」駅 徒歩7分
物件No. FBGBAA0C
10:00~18:00 / 定休日:毎週水曜日 ※5/1(金)~5/6(水) GW休業期間
よろしければ保存ボタンを選択してください。※保存後、以下の条件はマイページの「お知らせメール設定」より編集できます。
| エリア | 大阪府 大阪市北区 | 路 線 | 指定しない |
|---|---|---|---|
| 物件種別 | 店舗・事務所(区分所有) | 延床面積 | 300m²以上 ~ 500m²未満 |
| 土地面積 | 指定しない | 指定容積率 | 指定しない |
| 道路幅員 | 指定しない | 価 格 | 3億円以上 ~ 5億円未満 |
| 築年数 | 築20年以上 | 構 造 | 鉄骨鉄筋コンクリート造 |
| 土地権利 | 所有権 | 駅までの徒歩分数 | 5分未満 |
| 使用用途 | 指定しない | 用途地域 | 指定しない |
| 現況 | 指定しない |
マイページの「お知らせメール設定」よりご確認いただけます。
よろしければ保存ボタンを選択してください。
※保存後、以下の条件はマイページの「お知らせメール設定」より編集できます。
| エリア | 大阪府 大阪市北区 |
|---|---|
| 物件種別 | 店舗・事務所(区分所有) |
| 延床面積 | 300m²以上 ~ 500m²未満 |
| 価 格 | 3億円以上 ~ 5億円未満 |
| 築年数 | 築20年以上 |
| 構 造 | 鉄骨鉄筋コンクリート造 |
| 土地権利 | 所有権 |
| 駅までの徒歩分数 | 5分未満 |
マイページの「お知らせメール設定」よりご確認いただけます。
マイページの「保存した検索条件リスト」よりご確認いただけます。
検索条件にあてはまる物件情報をメールで受け取るには会員登録が必要となります。
マイページの「保存した検索条件リスト」よりご確認いただけます。
検索条件にあてはまる物件情報をメールで受け取るには会員登録が必要となります。
マイページの「保存した検索条件リスト」よりご確認いただけます。
検索条件にあてはまる物件情報をメールで受け取るには会員登録が必要となります。
マイページの「保存した検索条件リスト」よりご確認いただけます。
検索条件にあてはまる物件情報をメールで受け取るには会員登録が必要となります。