戸建

豊田市五ケ丘3丁目

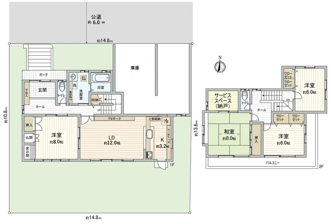
  • 間取図・車を雨や日差しから守る車庫付きの物件です。2階にはサービススペース(納戸)があり、収納に使えます。

  • リビング・LDKは約17.0帖の広さです。ご家族皆様で、のんびりと団らん時間をお過ごしいただけます。

  • 外観・4SLDKの車庫付き2階建て住宅です。ファミリーが使いやすい間取りになっており、収納スペースが豊富です。

  • キッチン・リビングの様子を見守りながら作業できます。たっぷり収納できるスペースがあり、キッチンがすっきり片付きます。

  • 浴室・一日の疲れをゆったりと癒すことができる浴室です。窓付きで換気ができ、明るい印象を与えてくれます。

  • 1階トイレ・玄関からも近く、お子様が急いでいる際にも便利です。トイレ内に手洗い場があり、移動せずに手を洗える便利な設計です。

  • 南庭・和の趣を感じる南庭です。白砂と飛び石が織りなす景観で、四季折々の風情を楽しめます。竹垣はプライバシーを守ります。

  • 1階洋室(約8.0帖)・全居室約6.0帖以上です。ライフスタイルによって様々な使い方をすることができます。

  • 洗面所・ストック品やタオルなど収納いただけます。たっぷり収納できるスペースがあり、すっきり片付きます。

  • 独立洗面化粧台・洗面所の収納が整っているので、いつでも清潔で快適な空間を保てます。シンプルなデザインです。

  • 中2階洋室(約6.0帖)・全居室約6.0帖以上です。ライフスタイルによって様々な使い方をすることができます。

  • 2階和室(約8.0帖)・全居室約6.0帖以上です。ライフスタイルによって様々な使い方をすることができます。

  • 2階トイレ・各階にトイレ完備で家族の生活に配慮されています。シンプルなデザインで清潔感あふれる環境になっています。

  • 2階洋室(約6.0帖)・全居室約6.0帖以上です。ライフスタイルによって様々な使い方をすることができます。

  • バルコニーからの眺望・日当たり良好の南向きバルコニーです。太陽の温かな温もりをめいっぱい受け止めてくれます。

  • バルコニー・日当たり良好の南向きバルコニーです。太陽の温かな温もりをめいっぱい受け止めてくれます。

  • 玄関・玄関写真です。玄関横には下足入があり収納がたっぷりあるので、靴がたくさんあっても安心の設計です。

  • 車庫・車を雨や日差しから守る車庫付きです。大切な愛車を保管するのに安心・便利な環境になっています。

  • リビング(別角度)・LDKは約17.0帖の広さです。ご家族皆様で、のんびりと団らん時間をお過ごしいただけます。

  • キッチン(別角度)・リビングの様子を見守りながら作業できます。たっぷり収納できるスペースがあり、キッチンがすっきり片付きます。

  • 車庫内・車を雨や日差しから守る車庫付きです。大切な愛車を保管するのに安心・便利な環境になっています。

  • 車庫内・車を雨や日差しから守る車庫付きです。大切な愛車を保管するのに安心・便利な環境になっています。

  • 南庭・和の趣を感じる南庭です。白砂と飛び石が織りなす景観で、四季折々の風情を楽しめます。竹垣はプライバシーを守ります。

  • 外観(別角度)・メグリア五ヶ丘店まで約100m(徒歩約2分)の立地です。徒歩圏内にスーパーがあり、ちょっとした買い物にも便利です。

  • 外観(別角度)・メグリア五ヶ丘店まで約100m(徒歩約2分)の立地です。徒歩圏内にスーパーがあり、ちょっとした買い物にも便利です。

  • リビング・LDKは約17.0帖の広さです。ご家族皆様で、のんびりと団らん時間をお過ごしいただけます。

  • 外観・4SLDKの車庫付き2階建て住宅です。ファミリーが使いやすい間取りになっており、収納スペースが豊富です。

  • キッチン・リビングの様子を見守りながら作業できます。たっぷり収納できるスペースがあり、キッチンがすっきり片付きます。

  • 浴室・一日の疲れをゆったりと癒すことができる浴室です。窓付きで換気ができ、明るい印象を与えてくれます。

  • 1階トイレ・玄関からも近く、お子様が急いでいる際にも便利です。トイレ内に手洗い場があり、移動せずに手を洗える便利な設計です。

  • 南庭・和の趣を感じる南庭です。白砂と飛び石が織りなす景観で、四季折々の風情を楽しめます。竹垣はプライバシーを守ります。

  • 1階洋室(約8.0帖)・全居室約6.0帖以上です。ライフスタイルによって様々な使い方をすることができます。

  • 洗面所・ストック品やタオルなど収納いただけます。たっぷり収納できるスペースがあり、すっきり片付きます。

  • 独立洗面化粧台・洗面所の収納が整っているので、いつでも清潔で快適な空間を保てます。シンプルなデザインです。

  • 中2階洋室(約6.0帖)・全居室約6.0帖以上です。ライフスタイルによって様々な使い方をすることができます。

  • 2階和室(約8.0帖)・全居室約6.0帖以上です。ライフスタイルによって様々な使い方をすることができます。

  • 2階トイレ・各階にトイレ完備で家族の生活に配慮されています。シンプルなデザインで清潔感あふれる環境になっています。

  • 2階洋室(約6.0帖)・全居室約6.0帖以上です。ライフスタイルによって様々な使い方をすることができます。

  • バルコニーからの眺望・日当たり良好の南向きバルコニーです。太陽の温かな温もりをめいっぱい受け止めてくれます。

  • バルコニー・日当たり良好の南向きバルコニーです。太陽の温かな温もりをめいっぱい受け止めてくれます。

  • 玄関・玄関写真です。玄関横には下足入があり収納がたっぷりあるので、靴がたくさんあっても安心の設計です。

  • 車庫・車を雨や日差しから守る車庫付きです。大切な愛車を保管するのに安心・便利な環境になっています。

  • リビング(別角度)・LDKは約17.0帖の広さです。ご家族皆様で、のんびりと団らん時間をお過ごしいただけます。

  • キッチン(別角度)・リビングの様子を見守りながら作業できます。たっぷり収納できるスペースがあり、キッチンがすっきり片付きます。

  • 車庫内・車を雨や日差しから守る車庫付きです。大切な愛車を保管するのに安心・便利な環境になっています。

  • 車庫内・車を雨や日差しから守る車庫付きです。大切な愛車を保管するのに安心・便利な環境になっています。

  • 南庭・和の趣を感じる南庭です。白砂と飛び石が織りなす景観で、四季折々の風情を楽しめます。竹垣はプライバシーを守ります。

  • 外観(別角度)・メグリア五ヶ丘店まで約100m(徒歩約2分)の立地です。徒歩圏内にスーパーがあり、ちょっとした買い物にも便利です。

  • 外観(別角度)・メグリア五ヶ丘店まで約100m(徒歩約2分)の立地です。徒歩圏内にスーパーがあり、ちょっとした買い物にも便利です。

  • 所在地

    愛知県豊田市五ケ丘3丁目 周辺地図

  • 交通

    名鉄豊田線豊田市駅 バス27分「五ヶ丘公園」停歩1分

  • 価格

    3280万円

  • 現況

    居住中

  • 延床面積

    122.55m² (約37.07坪)

  • 土地面積

    202.73m² (約61.32坪)

  • 築年月
    (築年数)

    1996年11月築 (築29年)

  • 構造

    木造 地上2階建

三井のリハウス
豊田センター

TEL:0120-38-0031

  • 所在地
  • 交通
  • 価格

    3280万円

  • 建物種別

    戸建

  • 延床面積

    122.55m² (約37.07坪)

  • 土地面積

    202.73m² (約61.32坪)

  • 築年月
    (築年数)

    1996年11月築 (築29年)

  • 代表間取り

    4SLDK

  • 構造

    木造 地上2階建

  • 現況

    居住中

  • 年間現行賃料

  • 土地権利

    所有権

  • 駐車場

  • バイク置場

  • 駐輪場

  • 地目

    宅地

  • 接道状況

    北側:幅員 約6.0m (公道)

  • 用途地域/建ぺい率/容積率

    近隣商業地域 / 80% / 200%

  • 都市計画

    市街化区域

  • 国土法届出要否

  • 備考

    ※当物件を事業の用として利用する場合、都市計画法をはじめとした各種法令の制限等に適応する必要があります。 事業の内容や規模によりご希望の事業をおこなえない場合がありますのでご容赦ください。詳しくは弊社担当者までお問合せください。 用途地域内の建築物の用途制限等について(参考)

  • リフォーム

    水回り(キッチン、トイレ、洗面所、給湯器) (2025年3月) 、 内装(床、壁) (2021年4月)

  • 引渡時期

    相談

  • 取引態様

    仲介

  • 更新日

    2026年4月16日

  • 次回更新予定日

    2026年4月30日

周辺地図 Map

お問い合わせ先 Contact

物件No. FB4AUA09

三井のリハウス 豊田センター

TEL : 0120-38-0031 TEL : 0120-38-0031

営業時間

10:00~18:00 / 定休日:毎週火曜日・水曜日 ※5/1(金)~5/6(水) GW休業期間

住所

愛知県豊田市西町1-200 豊田参合館2F

三井不動産リアルティ株式会社国土交通大臣(15)第777号

店舗ページ

この物件に近い条件の物件 Search condition

最近閲覧した物件 Recently viewed