戸建
New

瀬戸市高根町3丁目戸建

  • 増築未登記部分がございます。詳細な間取りにつきましては担当までご確認ください。

  • 1階部分は駐車スペースとして活用されており、バイクや車を雨から守ることができます。2階へは外階段で直接アクセスでき、プライバシーにも配慮された設計です。

  • 1階部分はピロティ形式で駐車スペースが確保されており、雨の日も車の乗り降りがしやすい構造です。外階段が設けられており、各住戸へのアクセスもスムーズです。

  • 1階部分はビルトインガレージとなっており、バイクや自転車、車を雨風から守りながら駐車できます。右手の外階段から各住戸へアクセスできます。

  • 低層集合住宅の外観です。前面道路は幅が広く、歩道も整備されており、車や自転車の出入りがしやすい環境です。

  • 1階部分はピロティ形式で駐車スペースが確保されており、バイクや自転車も置きやすい構造です。前面道路は幅があり、車の出し入れもしやすい環境です。

  • 3階建ての戸建て外観です。1階部分は広めのピロティ形式で、バイクや自転車、車の駐車スペースとして活用できます。

  • 1階部分は駐車スペースとして利用でき、バイクや自転車も置けるゆとりがあります。外階段が設けられており、各住戸への独立したアプローチが確保されています。

  • 外階段と白い手すりがアクセントとなり、道路からの視認性も良好です。前面道路は幅が広く、車や自転車の出入りもしやすい環境です。

  • 建物前面には階段付きのエントランスがあり、道路からのアクセスがしやすい構造です。周囲は幅のある道路と駐車スペースが広がり、車の出入りや来客時にも便利な環境です。

  • 建物は落ち着いた色合いの外壁で、周囲の住宅と調和した印象です。前面道路は幅員があり、車の出入りや歩行も安心感があります。

  • 幅員がしっかりと確保された前面道路の様子です。両側に住宅や駐車場が整然と並び、車の出入りや歩行者の通行も安心できる環境です。

  • 幅員がしっかり確保された前面道路の様子です。両側に戸建てや駐車場が並び、車の出し入れもしやすい印象です。

  • 1階部分は駐車スペースとして活用されており、バイクや車を雨から守ることができます。2階へは外階段で直接アクセスでき、プライバシーにも配慮された設計です。

  • 1階部分はピロティ形式で駐車スペースが確保されており、雨の日も車の乗り降りがしやすい構造です。外階段が設けられており、各住戸へのアクセスもスムーズです。

  • 1階部分はビルトインガレージとなっており、バイクや自転車、車を雨風から守りながら駐車できます。右手の外階段から各住戸へアクセスできます。

  • 低層集合住宅の外観です。前面道路は幅が広く、歩道も整備されており、車や自転車の出入りがしやすい環境です。

  • 1階部分はピロティ形式で駐車スペースが確保されており、バイクや自転車も置きやすい構造です。前面道路は幅があり、車の出し入れもしやすい環境です。

  • 3階建ての戸建て外観です。1階部分は広めのピロティ形式で、バイクや自転車、車の駐車スペースとして活用できます。

  • 1階部分は駐車スペースとして利用でき、バイクや自転車も置けるゆとりがあります。外階段が設けられており、各住戸への独立したアプローチが確保されています。

  • 外階段と白い手すりがアクセントとなり、道路からの視認性も良好です。前面道路は幅が広く、車や自転車の出入りもしやすい環境です。

  • 建物前面には階段付きのエントランスがあり、道路からのアクセスがしやすい構造です。周囲は幅のある道路と駐車スペースが広がり、車の出入りや来客時にも便利な環境です。

  • 建物は落ち着いた色合いの外壁で、周囲の住宅と調和した印象です。前面道路は幅員があり、車の出入りや歩行も安心感があります。

  • 幅員がしっかりと確保された前面道路の様子です。両側に住宅や駐車場が整然と並び、車の出入りや歩行者の通行も安心できる環境です。

  • 幅員がしっかり確保された前面道路の様子です。両側に戸建てや駐車場が並び、車の出し入れもしやすい印象です。

  • 所在地

    愛知県瀬戸市高根町3丁目 周辺地図

  • 交通

    愛知環状鉄道瀬戸口駅 徒歩23分

  • 価格

    1680万円

  • 現況

    空家

  • 延床面積

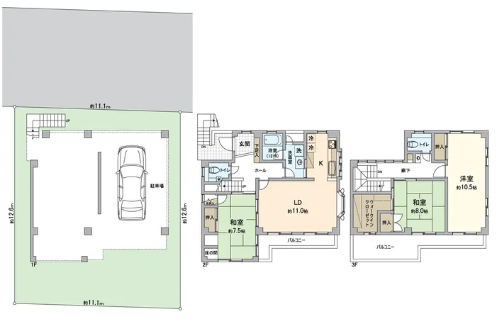
    111.49m² (約33.72坪)

  • 土地面積

    140.03m² (約42.35坪)

  • 築年月
    (築年数)

    1994年3月築 (築32年)

  • 構造

    鉄骨造 地上2階建

三井のリハウス
徳重センター

TEL:0120-16-0031

  • 所在地
  • 交通
  • 価格

    1680万円

  • 建物種別

    戸建

  • 延床面積

    111.49m² (約33.72坪)

  • 土地面積

    140.03m² (約42.35坪)

  • 築年月
    (築年数)

    1994年3月築 (築32年)

  • 代表間取り

    3LDK

  • 構造

    鉄骨造 地上2階建

  • 現況

    空家

  • 年間現行賃料

  • 土地権利

    所有権

  • 駐車場

  • バイク置場

  • 駐輪場

  • 地目

    宅地

  • 接道状況

    北東側:幅員 約5.0m (公道)

  • 用途地域/建ぺい率/容積率

    準工業地域 / 60% / 200%

  • 都市計画

    市街化区域

  • 国土法届出要否

  • 備考

    【小学校について】通学路の指定につきましては各学校、教育委員会へご確認ください。
    ※当物件を事業の用として利用する場合、都市計画法をはじめとした各種法令の制限等に適応する必要があります。 事業の内容や規模によりご希望の事業をおこなえない場合がありますのでご容赦ください。詳しくは弊社担当者までお問合せください。 用途地域内の建築物の用途制限等について(参考)

  • 引渡時期

    相談

  • 取引態様

    仲介

  • 更新日

    2026年4月26日

  • 次回更新予定日

    2026年5月10日

周辺地図 Map

お問い合わせ先 Contact

物件No. FA5BDA10

三井のリハウス 徳重センター

TEL : 0120-16-0031 TEL : 0120-16-0031

営業時間

10:00~18:00 / 定休日:毎週火曜日・水曜日 ※5/1(金)~5/6(水) GW休業期間

住所

愛知県名古屋市緑区徳重1丁目1412

三井不動産リアルティ株式会社国土交通大臣(15)第777号

店舗ページ 店舗地図

この物件に近い条件の物件 Search condition

最近閲覧した物件 Recently viewed