北海道札幌市白石区栄通13丁目 周辺地図
北海道札幌市白石区栄通13丁目 周辺地図
札幌市営東西線南郷13丁目駅 徒歩8分
5100万円
賃貸中
412.79m² (約124.86坪)
242.61m²
(約73.38坪)
2002年10月築 (築23年)
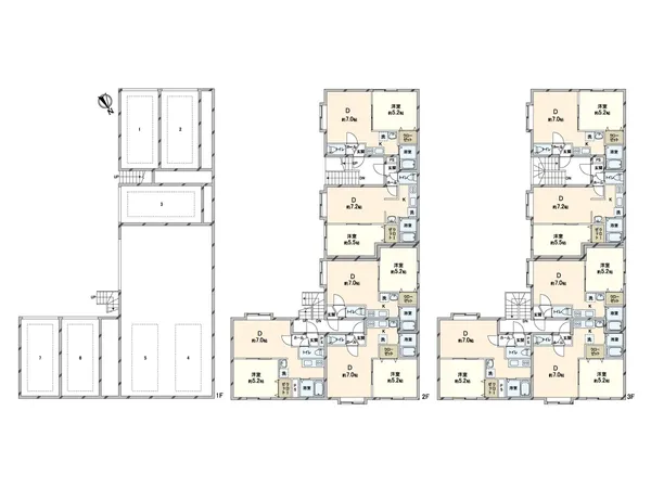
木造 地上3階建
三井のリハウス
札幌駅北口センター
TEL:0120-321-551
北海道札幌市白石区栄通13丁目
周辺地図
北海道札幌市白石区の事業用不動産(アパート)を探す
札幌市営東西線南郷13丁目駅 徒歩8分 札幌市営東西線 南郷13丁目駅の事業用不動産(アパート)を探す 札幌市営東西線 南郷13丁目駅の事業用不動産(アパート)を探す
5100万円
一棟アパート
412.79m² (約124.86坪)
242.61m²
(約73.38坪)
2002年10月築 (築23年)
1DK
木造 地上3階建
9戸
27.80㎡~31.04㎡
賃貸中
4,308,000 円 (調査日:2026年4月30日)
所有権
-
-
-
宅地
南西側:幅員 約15.0m (公道)
近隣商業地域
/
80%
/
200%
市街化区域
否
賃貸中(賃貸借契約引継要)
※当物件を事業の用として利用する場合、都市計画法をはじめとした各種法令の制限等に適応する必要があります。
事業の内容や規模によりご希望の事業をおこなえない場合がありますのでご容赦ください。詳しくは弊社担当者までお問合せください。
用途地域内の建築物の用途制限等について(参考)
相談
仲介
2026年4月30日
2026年5月14日
■ドミトリーSK ━━━━━━━━━・・・
〇 オーナーチェンジ物件
〇 地下鉄東西線「南郷13丁目」駅まで徒歩8分
〇 平成14年10月築
〇 木・鉄筋コンクリート造3階建
〇 総戸数9戸(1DK×9戸)
9戸中9戸稼働(令和8年4月現在)
〇 満室想定年間賃料:4,308,000円
〇 満室想定表面利回り:約8.4%
〇 現行年間賃料:4,308,000円
〇 現行表面利回り:約8.4%
〇 ビルトインガレージ
〇 ロードヒーティング敷設
〇 南西側前面札幌市道 幅員約15.0m
〇 敷地面積:242.61平米(約73.38坪)
〇 建物面積:412.79平米(約124.86坪)
〇 近隣商業地域(建ぺい率80% 容積率200%)
物件No. F9BBDA05
10:00~18:00 / 定休日:毎週水曜日・日曜日 ※5/1(金)~5/6(水) GW休業期間
よろしければ保存ボタンを選択してください。※保存後、以下の条件はマイページの「お知らせメール設定」より編集できます。
| エリア | 北海道 札幌市白石区 | 路 線 | 指定しない |
|---|---|---|---|
| 物件種別 | アパート | 延床面積 | 300m²以上 ~ 500m²未満 |
| 土地面積 | 200m²以上 ~ 300m²未満 | 指定容積率 | 200%以上 ~ 300%未満 |
| 道路幅員 | 12m以上 | 価 格 | 5,000万円以上 ~ 7,000万円未満 |
| 築年数 | 築20年以上 | 構 造 | 木造 |
| 土地権利 | 所有権 | 駅までの徒歩分数 | 5分以上 ~ 10分未満 |
| 使用用途 | 指定しない | 用途地域 | 近隣商業地域 |
| 現況 | 賃貸中 |
マイページの「お知らせメール設定」よりご確認いただけます。
よろしければ保存ボタンを選択してください。
※保存後、以下の条件はマイページの「お知らせメール設定」より編集できます。
| エリア | 北海道 札幌市白石区 |
|---|---|
| 物件種別 | アパート |
| 延床面積 | 300m²以上 ~ 500m²未満 |
| 土地面積 | 200m²以上 ~ 300m²未満 |
| 指定容積率 | 200%以上 ~ 300%未満 |
| 道路幅員 | 12m以上 |
| 価 格 | 5,000万円以上 ~ 7,000万円未満 |
| 築年数 | 築20年以上 |
| 構 造 | 木造 |
| 土地権利 | 所有権 |
| 駅までの徒歩分数 | 5分以上 ~ 10分未満 |
| 用途地域 | 近隣商業地域 |
| 現況 | 賃貸中 |
マイページの「お知らせメール設定」よりご確認いただけます。
マイページの「保存した検索条件リスト」よりご確認いただけます。
検索条件にあてはまる物件情報をメールで受け取るには会員登録が必要となります。
マイページの「保存した検索条件リスト」よりご確認いただけます。
検索条件にあてはまる物件情報をメールで受け取るには会員登録が必要となります。
マイページの「保存した検索条件リスト」よりご確認いただけます。
検索条件にあてはまる物件情報をメールで受け取るには会員登録が必要となります。
マイページの「保存した検索条件リスト」よりご確認いただけます。
検索条件にあてはまる物件情報をメールで受け取るには会員登録が必要となります。