戸建

藤沢市片瀬3丁目 店舗付住宅

  • 1階に店舗部分が備わった住まいです。2階部分の居住スペースは、2023年7月リフォーム済。バルコニーは広さにゆとりがあり、家事や在宅ワークの気分転換の場としてもご活用いただけます。

  • 【藤沢市片瀬3丁目 店舗付住宅】湘南モノレール「湘南江の島」まで徒歩2分、江ノ島電鉄線「江ノ島」駅まで徒歩2分など、3沿線3駅利用可能。スーパーやコンビニが徒歩5分圏内と、暮らしやすい住環境です。

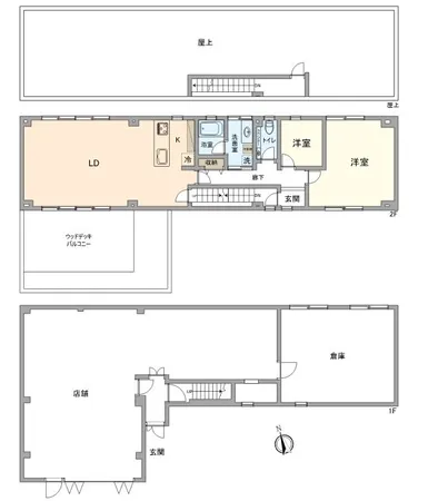
  • 【LDK】LDKは2階部分に設けられています。外からの視線が気になりにくく、ご家族一緒に、ゆったりと寛ぎのひと時をお過ごしいただけます。

  • 【キッチン】キッチンからリビング・ダイニングが見渡せますので、ご家族の気配を感じながら家事をすることができます。

  • 【バルコニー】洗濯物の外干しにも役立つ、明るく開放的なワイド型バルコニー。南西向きにつき、洗濯物がよく乾きそうです。

  • 【屋上】屋上からの眺望です。前面に大きな建物はなく青い空の広がりを感じていただけます。晴天時には富士山を望めます。

  • 【LDK】ご家族皆様でゆったりとお過ごしいただけるリビング・ダイニングです。2面採光につき、陽当り良好です。

  • 【店舗部分】1階に配された、ゆとりある広さの店舗部分です。奥には倉庫が設けられています。

  • 【店舗部分】南側の駐車場に面しているので、陽光が差し込みます。店舗内には、駐車場と1階の玄関内から出入り可能です。

  • 【外観】店舗部分と居住スペースがフロアで分かれているので、プライベート空間の分離が叶います。

  • 【キッチン】キッチンの背面にはカップボードが備わっています。食器などがすっきり片付きそうです。

  • 【洗面室】化粧品や小物類などをすっきりと収納できる、三面鏡付きの洗面化粧台が備わっています。

  • 【浴室】リラックスしたバスタイムを過ごせる、温かみのある浴室です。快適にお使いいただける浴室換気乾燥が備わっています。

  • 【トイレ】清潔感のあるトイレには、独立した手洗い器が備わっています。飾り棚としてもご活用いただけます。

  • 【2階玄関・廊下】廊下には、洗面室とトイレが配置されています。LDKの扉を閉めることで、玄関から室内の様子を伺われることがありません。

  • 【東側洋室】大きなベッドなども配置しやすい広さの洋室。ご夫婦やご家族の寝室としても活用いただけます。

  • 【北側洋室】帰宅動線に優れた洋室。家族が集うリビングから距離がありますので、リモートワークや勉強に集中しやすい居室です。

  • 【敷地配置図】

  • 【南側駐車場】店舗に面した敷地内駐車場の様子。複数台の駐車可能です(車種による)。周辺環境と合わせて現地をご見学ください。

  • 【1階玄関・階段】1階の玄関から直接、居住スペースへ向かうことができます。扉を閉めることで、居住スペースが丸見えになりません。

  • 【洋室】

  • 【2階玄関】

  • 【バルコニー】

  • 【洗面室】

  • 【外観写真】

  • 【外観写真】

  • 【LDK】

  • 【LDK】

  • 【バルコニー】

  • 【バルコニー】

  • 徒歩5分。営業時間は9:00~20:00。地元で長年利用されている地域密着型のスーパーです。

  • 【藤沢市片瀬3丁目 店舗付住宅】湘南モノレール「湘南江の島」まで徒歩2分、江ノ島電鉄線「江ノ島」駅まで徒歩2分など、3沿線3駅利用可能。スーパーやコンビニが徒歩5分圏内と、暮らしやすい住環境です。

  • 【LDK】LDKは2階部分に設けられています。外からの視線が気になりにくく、ご家族一緒に、ゆったりと寛ぎのひと時をお過ごしいただけます。

  • 【キッチン】キッチンからリビング・ダイニングが見渡せますので、ご家族の気配を感じながら家事をすることができます。

  • 【バルコニー】洗濯物の外干しにも役立つ、明るく開放的なワイド型バルコニー。南西向きにつき、洗濯物がよく乾きそうです。

  • 【屋上】屋上からの眺望です。前面に大きな建物はなく青い空の広がりを感じていただけます。晴天時には富士山を望めます。

  • 【LDK】ご家族皆様でゆったりとお過ごしいただけるリビング・ダイニングです。2面採光につき、陽当り良好です。

  • 【店舗部分】1階に配された、ゆとりある広さの店舗部分です。奥には倉庫が設けられています。

  • 【店舗部分】南側の駐車場に面しているので、陽光が差し込みます。店舗内には、駐車場と1階の玄関内から出入り可能です。

  • 【外観】店舗部分と居住スペースがフロアで分かれているので、プライベート空間の分離が叶います。

  • 【キッチン】キッチンの背面にはカップボードが備わっています。食器などがすっきり片付きそうです。

  • 【洗面室】化粧品や小物類などをすっきりと収納できる、三面鏡付きの洗面化粧台が備わっています。

  • 【浴室】リラックスしたバスタイムを過ごせる、温かみのある浴室です。快適にお使いいただける浴室換気乾燥が備わっています。

  • 【トイレ】清潔感のあるトイレには、独立した手洗い器が備わっています。飾り棚としてもご活用いただけます。

  • 【2階玄関・廊下】廊下には、洗面室とトイレが配置されています。LDKの扉を閉めることで、玄関から室内の様子を伺われることがありません。

  • 【東側洋室】大きなベッドなども配置しやすい広さの洋室。ご夫婦やご家族の寝室としても活用いただけます。

  • 【北側洋室】帰宅動線に優れた洋室。家族が集うリビングから距離がありますので、リモートワークや勉強に集中しやすい居室です。

  • 【敷地配置図】

  • 【南側駐車場】店舗に面した敷地内駐車場の様子。複数台の駐車可能です(車種による)。周辺環境と合わせて現地をご見学ください。

  • 【1階玄関・階段】1階の玄関から直接、居住スペースへ向かうことができます。扉を閉めることで、居住スペースが丸見えになりません。

  • 【洋室】

  • 【2階玄関】

  • 【バルコニー】

  • 【洗面室】

  • 【外観写真】

  • 【外観写真】

  • 【LDK】

  • 【LDK】

  • 【バルコニー】

  • 【バルコニー】

  • 徒歩5分。営業時間は9:00~20:00。地元で長年利用されている地域密着型のスーパーです。

  • 所在地

    神奈川県藤沢市片瀬3丁目 周辺地図

  • 交通

    湘南モノレール湘南江の島駅 徒歩2分
    江ノ島電鉄江ノ島駅 徒歩2分
    小田急電鉄江ノ島線片瀬江ノ島駅 徒歩10分

  • 価格

    7500万円

  • 現況

    空家

  • 延床面積

    221.30m² (約66.94坪)

  • 土地面積

    279.40m² (約84.51坪)

  • 築年月
    (築年数)

    1981年1月築 (築45年)

  • 構造

    鉄骨造 地上2階建

三井のリハウス
藤沢センター

TEL:0120-399-031

周辺地図 Map

お問い合わせ先 Contact

物件No. F90AUA0E

三井のリハウス 藤沢センター

TEL : 0120-399-031 TEL : 0120-399-031

営業時間

10:00~18:00 / 定休日:毎週火曜日・水曜日

住所

神奈川県藤沢市南藤沢3-12 クリオ藤沢駅前4F

三井不動産リアルティ株式会社国土交通大臣(15)第777号

店舗ページ 店舗地図

この物件に近い条件の物件 Search condition

最近閲覧した物件 Recently viewed