東京都板橋区中台1丁目 周辺地図
東京都板橋区中台1丁目 周辺地図
東武東上線上板橋駅 徒歩7分
東武東上線東武練馬駅 徒歩18分
都営三田線志村三丁目駅 徒歩22分
4480万円
居住中
110.74m² (約33.49坪)
66.34m²
(約20.06坪)
※別途私道約15.56m²有
(共有持分 896/1556)
1963年11月築 (築62年)
木造 地上3階建
三井のリハウス
ときわ台センター
TEL:0120-929-231
東京都板橋区中台1丁目
周辺地図
東京都板橋区の事業用不動産(戸建)を探す
東武東上線上板橋駅 徒歩7分
東武東上線 上板橋駅の事業用不動産(戸建)を探す
東武東上線東武練馬駅 徒歩18分
東武東上線 東武練馬駅の事業用不動産(戸建)を探す
都営三田線志村三丁目駅 徒歩22分
都営三田線 志村三丁目駅の事業用不動産(戸建)を探す
東武東上線 上板橋駅の事業用不動産(戸建)を探す
東武東上線 東武練馬駅の事業用不動産(戸建)を探す
都営三田線 志村三丁目駅の事業用不動産(戸建)を探す
4480万円
戸建
110.74m² (約33.49坪)
66.34m²
(約20.06坪)
※別途私道約15.56m²有
(共有持分 896/1556)
1963年11月築 (築62年)
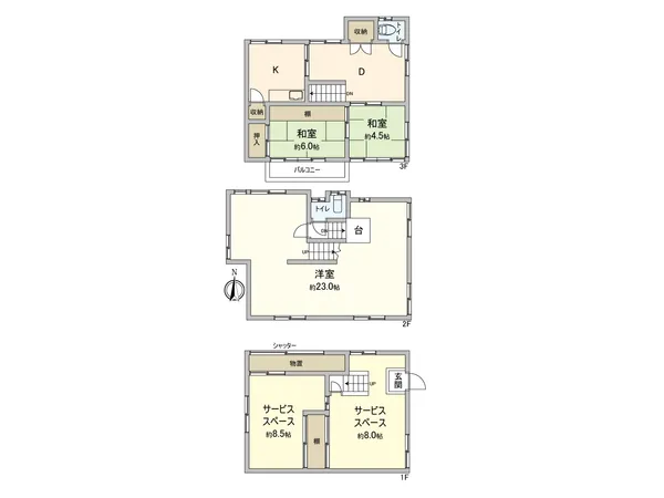
3DK+S×2
木造 地上3階建
居住中
-
所有権
無
-
-
宅地
東側:幅員 約3.8m (私道) 、 北側:幅員 約3.8m (私道)
準工業地域
/
60%
/
200%
市街化区域
否
本物件は、建築基準法に定める道路に接道していないため原則として建物の建築・増築・改築はできません。
※当物件を事業の用として利用する場合、都市計画法をはじめとした各種法令の制限等に適応する必要があります。
事業の内容や規模によりご希望の事業をおこなえない場合がありますのでご容赦ください。詳しくは弊社担当者までお問合せください。
用途地域内の建築物の用途制限等について(参考)
相談
仲介
2026年4月12日
2026年4月26日
-物件のおすすめポイント-
▼立地
・東武東上線「上板橋」駅徒歩7分
・東武東上線「東武練馬」駅徒歩18分
▼特徴
・土地面積66.34平米(約20.06坪)
・建物面積110.74平米(約33.49坪)
・3DK+S×2の間取り
・北東角地につき通風良好
・トイレ2箇所あり(2・3階)
・事務所としての利用も可能です
・周辺に買い物施設等多く、生活利便性良好です
▼周辺環境
・ベルクス板橋中台店 徒歩3分(約170m)
・セブンイレブン板橋若木1丁目店 徒歩3分(約210m)
■ ご希望の住まい探しをお手伝いします ━━━━━・・・
物件の詳細・ご相談はお気軽にお問い合わせください。
物件No. F56ARA10
10:00~18:00 / 定休日:毎週火曜日・水曜日 ※5/1(金)~5/6(水) GW休業期間
よろしければ保存ボタンを選択してください。※保存後、以下の条件はマイページの「お知らせメール設定」より編集できます。
| エリア | 東京都 板橋区 | 路 線 | 指定しない |
|---|---|---|---|
| 物件種別 | 戸建 | 延床面積 | 100m²以上 ~ 300m²未満 |
| 土地面積 | 100m²未満 | 指定容積率 | 200%以上 ~ 300%未満 |
| 道路幅員 | 4m未満 | 価 格 | 3,000万円以上 ~ 5,000万円未満 |
| 築年数 | 築20年以上 | 構 造 | 木造 |
| 土地権利 | 所有権 | 駅までの徒歩分数 | 5分以上 ~ 10分未満 |
| 使用用途 | 指定しない | 用途地域 | 準工業地域 |
| 現況 | 指定しない |
マイページの「お知らせメール設定」よりご確認いただけます。
よろしければ保存ボタンを選択してください。
※保存後、以下の条件はマイページの「お知らせメール設定」より編集できます。
| エリア | 東京都 板橋区 |
|---|---|
| 物件種別 | 戸建 |
| 延床面積 | 100m²以上 ~ 300m²未満 |
| 土地面積 | 100m²未満 |
| 指定容積率 | 200%以上 ~ 300%未満 |
| 道路幅員 | 4m未満 |
| 価 格 | 3,000万円以上 ~ 5,000万円未満 |
| 築年数 | 築20年以上 |
| 構 造 | 木造 |
| 土地権利 | 所有権 |
| 駅までの徒歩分数 | 5分以上 ~ 10分未満 |
| 用途地域 | 準工業地域 |
マイページの「お知らせメール設定」よりご確認いただけます。
マイページの「保存した検索条件リスト」よりご確認いただけます。
検索条件にあてはまる物件情報をメールで受け取るには会員登録が必要となります。
マイページの「保存した検索条件リスト」よりご確認いただけます。
検索条件にあてはまる物件情報をメールで受け取るには会員登録が必要となります。
マイページの「保存した検索条件リスト」よりご確認いただけます。
検索条件にあてはまる物件情報をメールで受け取るには会員登録が必要となります。
マイページの「保存した検索条件リスト」よりご確認いただけます。
検索条件にあてはまる物件情報をメールで受け取るには会員登録が必要となります。