広島県広島市中区中島町 周辺地図
広島県広島市中区中島町 周辺地図
山陽本線広島駅 バス23分「加古町」停歩2分
7280万円
賃貸中
264.96m² (約80.15坪)
120.82m²
(約36.54坪)
1990年11月築 (築35年)
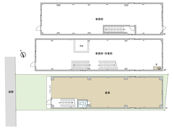
鉄骨造 地上3階建
三井のリハウス
広島中央センター
TEL:0120-386-321
広島県広島市中区中島町
周辺地図
広島県広島市中区の事業用不動産(一棟ビル)を探す
山陽本線広島駅 バス23分「加古町」停歩2分 山陽本線 広島駅の事業用不動産(一棟ビル)を探す 山陽本線 広島駅の事業用不動産(一棟ビル)を探す
7280万円
一棟ビル
264.96m² (約80.15坪)
120.82m²
(約36.54坪)
1990年11月築 (築35年)
3K
鉄骨造 地上3階建
賃貸中
-
所有権
有
-
-
宅地
北西側:幅員 約6.0m (公道)
近隣商業地域
/
80%
/
400%
※但し、前面道路幅員により360%に制限されます。
市街化区域
否
※当物件を事業の用として利用する場合、都市計画法をはじめとした各種法令の制限等に適応する必要があります。 事業の内容や規模によりご希望の事業をおこなえない場合がありますのでご容赦ください。詳しくは弊社担当者までお問合せください。 用途地域内の建築物の用途制限等について(参考)
即時
仲介
2026年2月13日
2026年2月27日
~おすすめポイント~
〇 中心部へのアクセスの良い「中島町」
〇 敷地面積約36.5坪
〇 事務所・倉庫として賃貸中
(賃料等は担当までお問い合わせください)
物件No. FV1BAA01
10:00~18:00 / 定休日:毎週火曜日・水曜日
よろしければ保存ボタンを選択してください。※保存後、以下の条件はマイページの「お知らせメール設定」より編集できます。
| エリア | 広島県 広島市中区 | 路 線 | 指定しない |
|---|---|---|---|
| 物件種別 | 一棟ビル | 延床面積 | 100m²以上 ~ 300m²未満 |
| 土地面積 | 100m²以上 ~ 200m²未満 | 指定容積率 | 400%以上 ~ 500%未満 |
| 道路幅員 | 6m以上 ~ 8m未満 | 価 格 | 7,000万円以上 ~ 1億円未満 |
| 築年数 | 築20年以上 | 構 造 | 鉄骨造 |
| 土地権利 | 所有権 | 駅までの徒歩分数 | 指定しない |
| 使用用途 | 指定しない | 用途地域 | 近隣商業地域 |
| 現況 | 賃貸中 |
マイページの「お知らせメール設定」よりご確認いただけます。
よろしければ保存ボタンを選択してください。
※保存後、以下の条件はマイページの「お知らせメール設定」より編集できます。
| エリア | 広島県 広島市中区 |
|---|---|
| 物件種別 | 一棟ビル |
| 延床面積 | 100m²以上 ~ 300m²未満 |
| 土地面積 | 100m²以上 ~ 200m²未満 |
| 指定容積率 | 400%以上 ~ 500%未満 |
| 道路幅員 | 6m以上 ~ 8m未満 |
| 価 格 | 7,000万円以上 ~ 1億円未満 |
| 築年数 | 築20年以上 |
| 構 造 | 鉄骨造 |
| 土地権利 | 所有権 |
| 用途地域 | 近隣商業地域 |
| 現況 | 賃貸中 |
マイページの「お知らせメール設定」よりご確認いただけます。
マイページの「保存した検索条件リスト」よりご確認いただけます。
検索条件にあてはまる物件情報をメールで受け取るには会員登録が必要となります。
マイページの「保存した検索条件リスト」よりご確認いただけます。
検索条件にあてはまる物件情報をメールで受け取るには会員登録が必要となります。
マイページの「保存した検索条件リスト」よりご確認いただけます。
検索条件にあてはまる物件情報をメールで受け取るには会員登録が必要となります。
マイページの「保存した検索条件リスト」よりご確認いただけます。
検索条件にあてはまる物件情報をメールで受け取るには会員登録が必要となります。