神奈川県足柄下郡湯河原町宮上 周辺地図
神奈川県足柄下郡湯河原町宮上 周辺地図
東海道本線(東京~熱海)湯河原駅 バス12分「源泉郷」停歩1分
1億6800万円
居住中
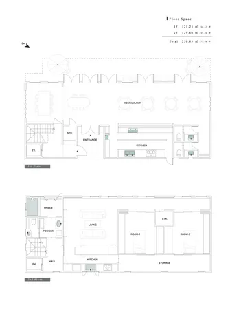
250.83m² (約75.87坪)
769.64m²
(約232.81坪)
2018年6月築 (築7年)
木造 地上2階建
横浜支店
ソリューション営業部
営業グループ1
TEL:0120-925-987
神奈川県足柄下郡湯河原町宮上
周辺地図
神奈川県足柄下郡湯河原町の事業用不動産(店舗・事務所)を探す
東海道本線(東京~熱海)湯河原駅 バス12分「源泉郷」停歩1分 東海道本線(東京~熱海) 湯河原駅の事業用不動産(店舗・事務所)を探す 東海道本線(東京~熱海) 湯河原駅の事業用不動産(店舗・事務所)を探す
1億6800万円
店舗・事務所
250.83m² (約75.87坪)
769.64m²
(約232.81坪)
2018年6月築 (築7年)
2LDK
木造 地上2階建
居住中
-
所有権
-
-
-
宅地
-
商業地域
/
80%
/
400%
市街化区域
否
当該敷地内に他人地(鉱泉地)あり
※当物件を事業の用として利用する場合、都市計画法をはじめとした各種法令の制限等に適応する必要があります。
事業の内容や規模によりご希望の事業をおこなえない場合がありますのでご容赦ください。詳しくは弊社担当者までお問合せください。
用途地域内の建築物の用途制限等について(参考)
相談
仲介
2026年4月14日
2026年4月28日
■ おすすめポイント ━━━━━━━━━━━━━━━・・・・・
■ 静けさと意匠が共鳴する湯河原リトリート邸宅
■ アーチ状の門構えと自然石の配置が印象的なエントランス
■ レストランホール ― 幾何学的な窓から柔らかな光が差し込
み、四季の庭を映し出す
■ 2階居室 ― 木漏れ日と緑に包まれる静かな空間
■ 庭園 ― 石と水の配置が調和し、静寂と自然のリズムを感じ
させる構成
━━━━━━━━━━━━━━━・・・・・
この度は、ホームページを閲覧いただき誠にありがとうございます。
ソリューション営業部は
投資用・事業用不動産の取扱を専門としたセクションです。
お客様の様々なご要望(投資物件売買・相続対策・資産組換え・・・等)に
応じた丁寧な営業を心がけておりますので、この機会にぜひご用命ください。
物件No. FMWAWA03
09:30~18:00 / 定休日:水曜・日曜
よろしければ保存ボタンを選択してください。※保存後、以下の条件はマイページの「お知らせメール設定」より編集できます。
| エリア | 神奈川県 足柄下郡湯河原町 | 路 線 | 指定しない |
|---|---|---|---|
| 物件種別 | 店舗・事務所 | 延床面積 | 100m²以上 ~ 300m²未満 |
| 土地面積 | 500m²以上 ~ 1000m²未満 | 指定容積率 | 400%以上 ~ 500%未満 |
| 道路幅員 | 指定しない | 価 格 | 1億円以上 ~ 2億円未満 |
| 築年数 | 築5年以上~築10年未満 | 構 造 | 木造 |
| 土地権利 | 所有権 | 駅までの徒歩分数 | 指定しない |
| 使用用途 | 指定しない | 用途地域 | 商業地域 |
| 現況 | 指定しない |
マイページの「お知らせメール設定」よりご確認いただけます。
よろしければ保存ボタンを選択してください。
※保存後、以下の条件はマイページの「お知らせメール設定」より編集できます。
| エリア | 神奈川県 足柄下郡湯河原町 |
|---|---|
| 物件種別 | 店舗・事務所 |
| 延床面積 | 100m²以上 ~ 300m²未満 |
| 土地面積 | 500m²以上 ~ 1000m²未満 |
| 指定容積率 | 400%以上 ~ 500%未満 |
| 価 格 | 1億円以上 ~ 2億円未満 |
| 築年数 | 築5年以上~築10年未満 |
| 構 造 | 木造 |
| 土地権利 | 所有権 |
| 用途地域 | 商業地域 |
マイページの「お知らせメール設定」よりご確認いただけます。
マイページの「保存した検索条件リスト」よりご確認いただけます。
検索条件にあてはまる物件情報をメールで受け取るには会員登録が必要となります。
マイページの「保存した検索条件リスト」よりご確認いただけます。
検索条件にあてはまる物件情報をメールで受け取るには会員登録が必要となります。
マイページの「保存した検索条件リスト」よりご確認いただけます。
検索条件にあてはまる物件情報をメールで受け取るには会員登録が必要となります。
マイページの「保存した検索条件リスト」よりご確認いただけます。
検索条件にあてはまる物件情報をメールで受け取るには会員登録が必要となります。